Proyecto
Casa pasiva Zalmedina
Ubicación
Zaragoza
Año
2024
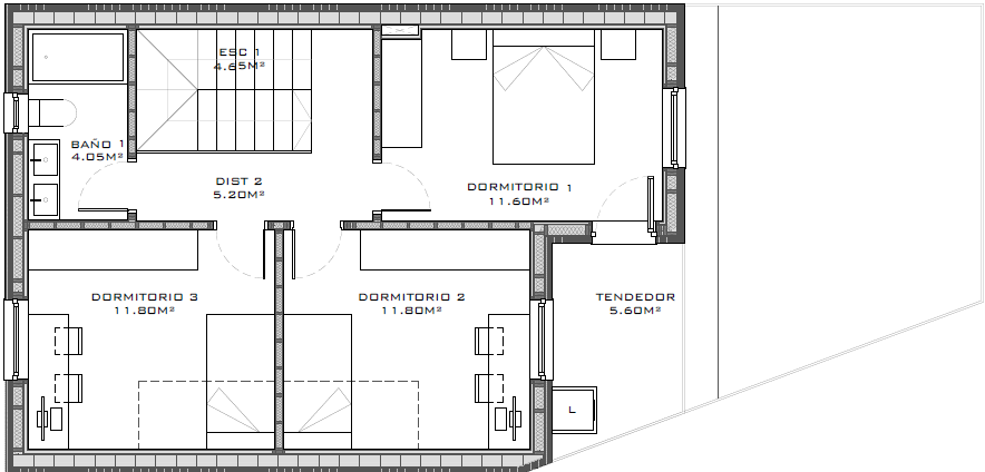
Vivienda unifamiliar construida bajo el estándar Passivhaus, ubicada en Zaragoza ciudad, en el casco urbano. La vivienda al estar construida entre medianeras, las paredes colindantes están levantadas con termoarcilla y el resto de estructura portante muros, forjados y cubierta está realizado en entramado ligero. La vivienda se desarrolla en planta baja, planta primera y planta segunda, donde se encuentra el trastero y la azotea. Es de línea contemporánea y se ha proyectado para que en planta baja se desarrolle la actividad diurna, con un ventanal y una balconera con acceso a patio/jardín trasero, terraza en planta primera y una amplia azotea acondicionada, perfecta para las noches de verano.
Otros proyectos destacados












