Proyecto
Casa pasiva Ricla
Ubicación
Ricla (Zaragoza)
Año
2020
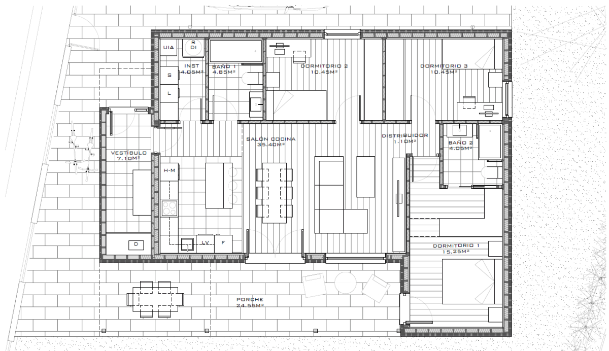
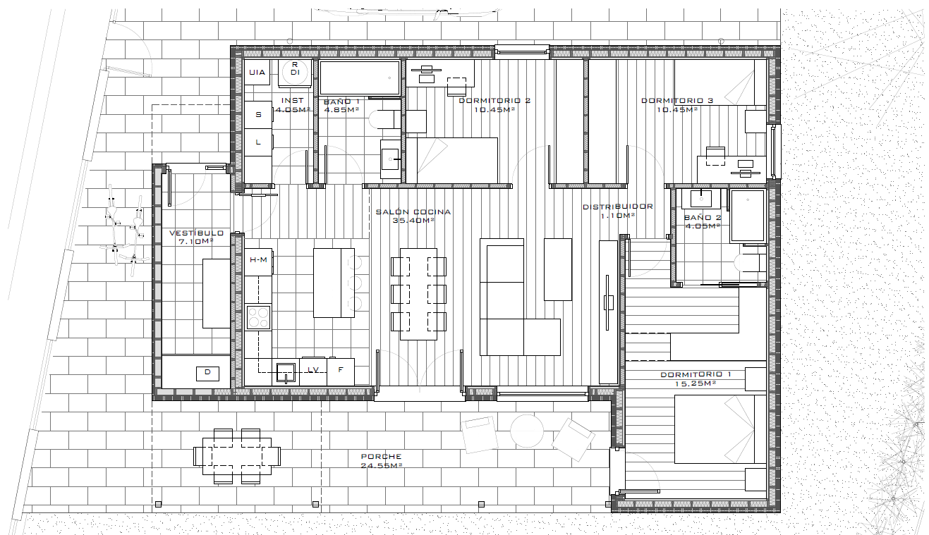
Vivienda unifamiliar construida bajo el estándar Passivhaus, ubicada en Ricla (Zaragoza) localidad próxima a Zaragoza ciudad. Se trata de una vivienda de planta baja, de líneas contemporáneas y cubierta plana con acabado superficial en grava. Se desarrolla en planta baja con una grande balconera que da acceso al porche y jardín. A la edificación se adosa porche abierto y otro porche cubierto, todo ello fuera de la envolvente pasiva. En su exterior, la fachada está con un revestimiento continuo de SATE. La estructura portante, de forjado y cubierta está realizado en entramado ligero, dejando ver poste y viga de madera laminada.
Otros proyectos destacados


