Proyecto
Casa pasiva Torrepinar
Ubicación
Zaragoza
Año
2021
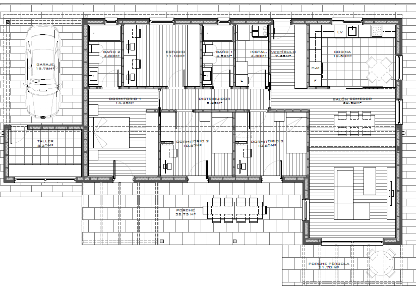
Vivienda unifamiliar construida bajo el estándar Passivhaus, ubicada en Garrapinillos (Zaragoza) . La vivienda se desarrolla únicamente en planta baja y construcciones anexas destinadas a garaje, taller y porches cubiertos. La zona de actividad diurna se concentra principalmente al Sureste disponiendo de amplias balconeras que dan acceso al porche y a la zona ajardinada. A la vivienda se adosan pérgolas en la fachada, un garaje cubierto y un anexo destinado a taller.
Otros proyectos destacados




