Proyecto
Casa pasiva Torrero 01
Ubicación
Zaragoza
Año
2020
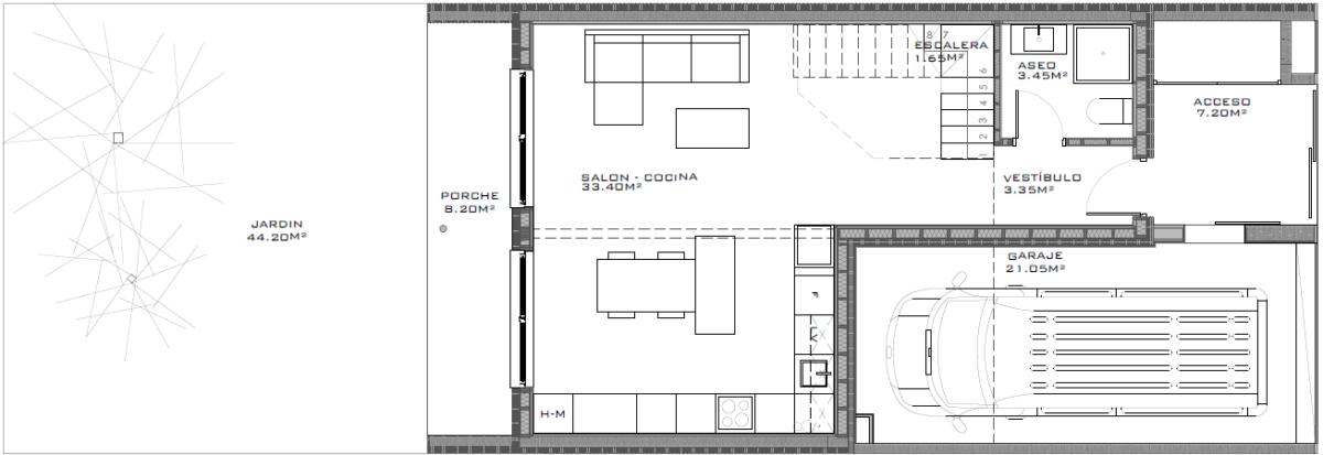
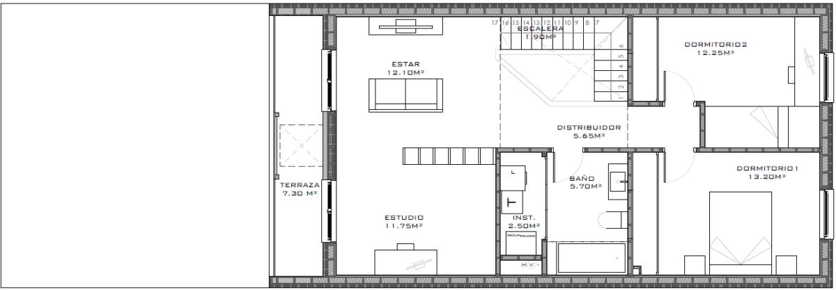
Vivienda unifamiliar construida bajo el estándar Passivhaus, ubicada en Zaragoza ciudad, en el casco urbano. La vivienda al estar construida entre medianeras, las paredes colindantes están levantadas con termoarcilla y el resto de estructura portante muros, forjados y cubierta está realizado en entramado ligero. La vivienda se desarrolla en planta baja mediante una distribución compuesta por acceso, vestíbulo, aseo, salón-comedor, cocina, porche jardín y garaje, y en planta primera con 2 dormitorios, baño, distribuidor, estar, estudio y terraza.
Otros proyectos destacados




