Proyecto
Casa pasiva Montecanal 02
Ubicación
Zaragoza
Año
2020
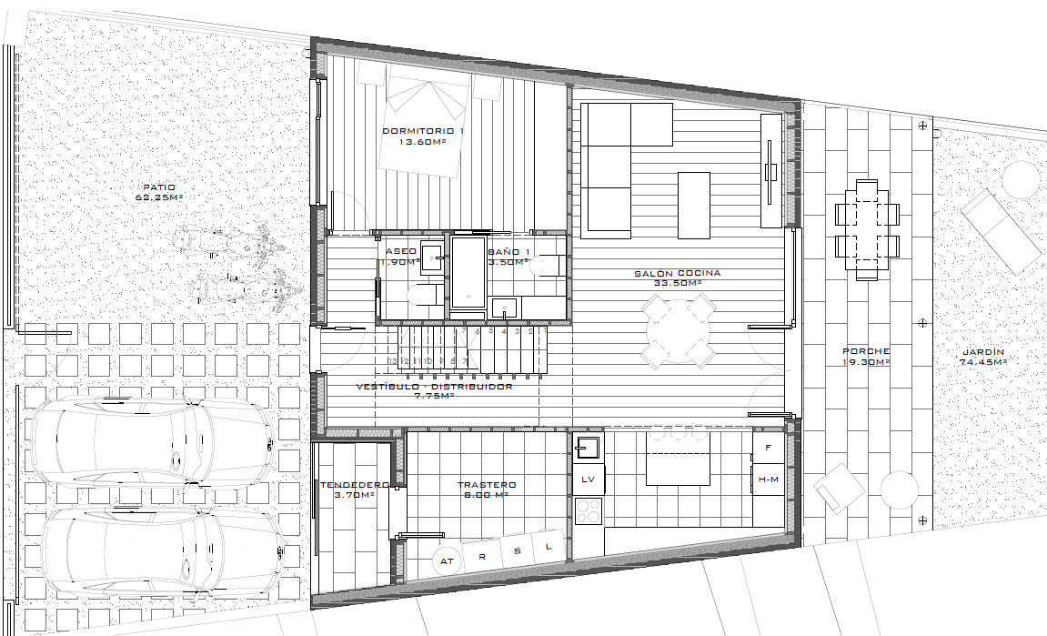
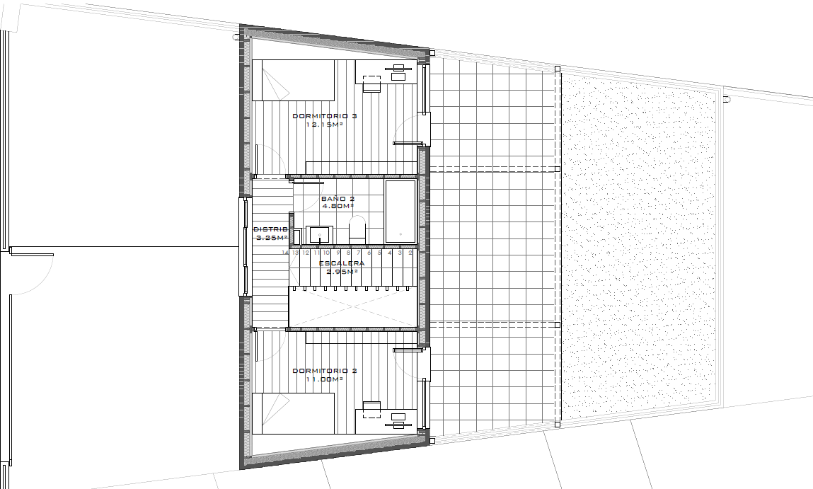
Vivienda unifamiliar construida bajo el estándar Passivhaus, ubicada en Zaragoza. La construcción se desarrolla en planta semienterrada donde se ubica la bodega y lo que es la vivienda, está en planta calle más planta primera. La vivienda está compuesta en planta calle por salón-comedor, cocina, trastero, dormitorio con baño, aseo y porche, mientras que la planta primera está compuesta por 2 dormitorios, baño, distribuidor y terraza. La estructura portante en planta semienterrada está realizada en hormigón, mientras que la de planta calle y planta primera en entramado ligero que es la que queda dentro de la envolvente pasiva.
Otros proyectos destacados













